site plan with new floor plan layout at new ADU and at new addition to existing residence
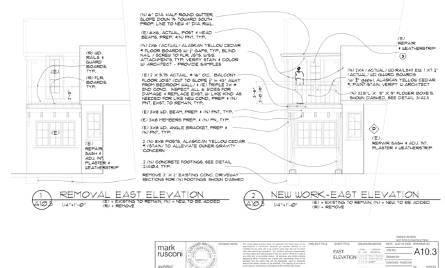
sample construction document for new balcony
all hardware is recessed for a seamless look
new cantilevered floor framing at balcony
new cantilevered floor framing at balcony

mark rusconi architects

Architecture     Design      Interiors